Skip to content

Spilldoc Explosion Proof Cable Heated Shower & Eyewash SD-580

Part Number: SD-580
Brand: SPILLDOC
Original price - Original price
Original price
-
Current price
Material: 304 Stainless Steel
Require Official Quotation and Tax Invoice?

Click Request a Quote, fill up the details and submit.

[At the payment section, select Request a Quote or Request a Tax Invoice. (You dont need to make payment doing so).]

Alternatively, you may also send us an email to sales@spilldoc.sg with your company details and purchase requirements.

Once received your submission, our local sales team will contact you within 1 business day.

Become our Reseller/ Distributor

If you're a reseller or a contractor considering a frequent purchases, you may request for a special quote with discounts.

Kindly send us an email at sales@spilldoc.sg and our local sales team will be with you within 1 working day.

Spilldoc Explosion Proof Cable Heated Shower & Eyewash SD-580

Part Number: SD-580
Brand: SPILLDOC
Material: 304 Stainless Steel / 316 Stainless Steel
Type: Anti-Freeze Cable Heated  Safety Shower & Eyewash
Activation: Hand Push Plate and Foot Treadle
Standard: ANSI Z358.1-2014
Warranty: 12 Months from product supply against manufacturing defects

Emergency eyewash and safety shower stations are essential equipment for every industry that uses chemical and hazardous substances. We provide a wide range of Emergency safety showers and equipment and guidance to maintain a safe environment in a hazardous workplace.

Product Concept

SD-580 Cable Heated Economical Eye Wash & Shower suitable for use in areas where the ambient temperature is below 0℃.Emergency eyewash and shower units are designed to rinse contaminants from the user’s eyes, face or body. As such, these units are forms of first aid equipment to be used in the event of an accident. However, they are not a substitute for primary protective devices (including eye and face protection and protective clothing) or for safety procedures when handling hazardous materials.Explosion Proof Standard: Exe II T6, it can also be customized according to customer need.

Location
In general, the ANSI standard requires that emergency equipment be installed within 10 seconds walking distance from the location of a hazard (approximately 55 feet). The equipment must be installed on the same level as the hazard (i.e. accessing the equipment should not require going up or down stairs or ramps). The path of travel from the hazard to the equipment should be free of obstructions and as direct as possible. The location of the emergency equipment must be marked with a highly visible sign.

Original Water:
Drinking water or filtered water

Hydraulic Pressure and Flow Rate
0.2-0.6MPA. If the pressure exceeds 0.2-0.6MPA, please install the relief valve to protect the user’s eyes. Eye wash flow≥11.4L/ Min, shower flow≥75.7L/ Min

Technical Data

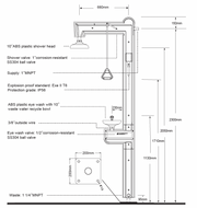
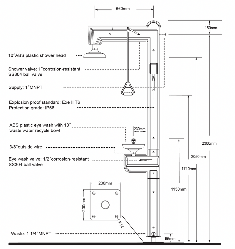
Head: 10"ABS plastic in safety yellow head. ABS plastic eye wash with 10"waste water recycle bowl
Shower valve: 1"corrosion-resistant SS304 ball valve
Eye wash valve: 1/2"corrosion-resistant SS304 ball valve
Supply: 1"MNPT
Waste: 1 1/4"MNPT
Voltage: 220V-250V
Power: ≤250W

 

 

 

 

 

 

Stocks Availability

Stocks are available, subject to prior sales.
For customisation and project specific order, lead time for production and delivery may be required.

Delivery Information

Our standard delivery lead time is 1-3 working days upon receipt of order confirmation via Purchase Order, Signed quote or a payment confirmation.

We offer Free Delivery for order value above $200 within mainland Singapore (excluding Islands, ports, and special zones.)
Delivery charge of $30 is applicable for order value less than $200.

This item is available for Click & Collect from our Joo Seng Warehouse. Usually ready within 24 hours. See checkout for more details.

To expedite the order, you may add this item to quote and submit the order request (subjected to stocks availability).

For same day collection, please contact us via WhatsApp and provide the below information:

Company Name:
Billing Address:
Contact Person:
Phone:
Email:

If you're a reseller or considering a bulk purchase quantity, you may request for a special quote. Kindly send us an email at sales@spilldoc.sg and we will get back to you within 1 working day.

Compare products

{"one"=>"Select 2 or 3 items to compare", "other"=>"{{ count }} of 3 items selected"}

Select first item to compare

Select second item to compare

Select third item to compare

Compare